-
-
-
Hirdetés adatai
Azonosító:
D150
Értékesítés:
Eladó
Típusa:
Ház
Megye:
Tolna
Város:
Paks
Ár:
199 M ft
Alapterület:
160 nm
Szobák száma:
3 db
Garázs:
-
Fűtés:
-
Leírás

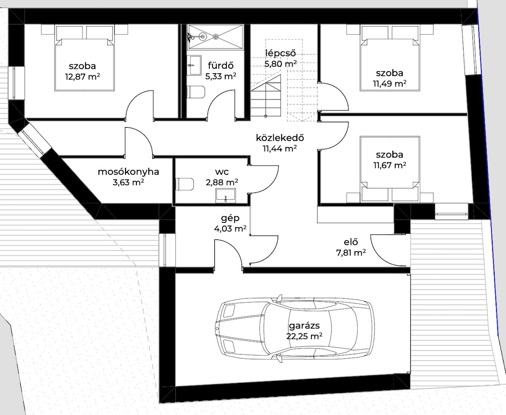
Pakson exkluzív újépítésű dunai panorámás családi ház eladó! 

Az ingatlan belső szintes.

A földszinten található: 3 szoba, fürdő, 2 WC, mosókonyha, gépészet, előszoba, garázs.

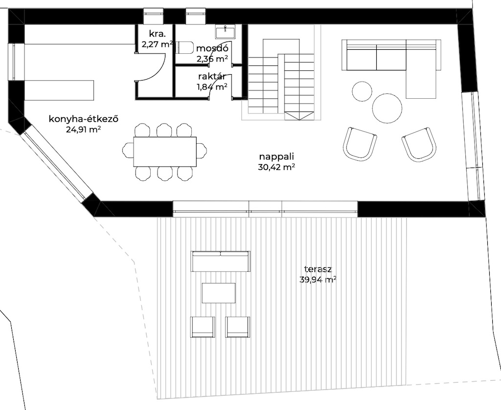
Az emeleten található: konyha-étkező-nappali, kamra, mosdó, terasz.

A családi ház luxus kivitelben kerül átadásra többszörösen díjnyertes kivitelező által.

Az építkezés jelenlegi szakaszában burkolatok, szaniterek, színek választhatóak.

Hőszivattyús mennyezethűtés és padlófűtés.

További kérdés esetén keressen bizalommal!

 

Képek