-
-
-
Hirdetés adatai
Azonosító:
D146
Értékesítés:
Eladó
Típusa:
Lakás
Megye:
Tolna
Város:
Paks
Ár:
77 M ft
Alapterület:
59 nm
Szobák száma:
2 db
Garázs:
-
Fűtés:
-
Leírás

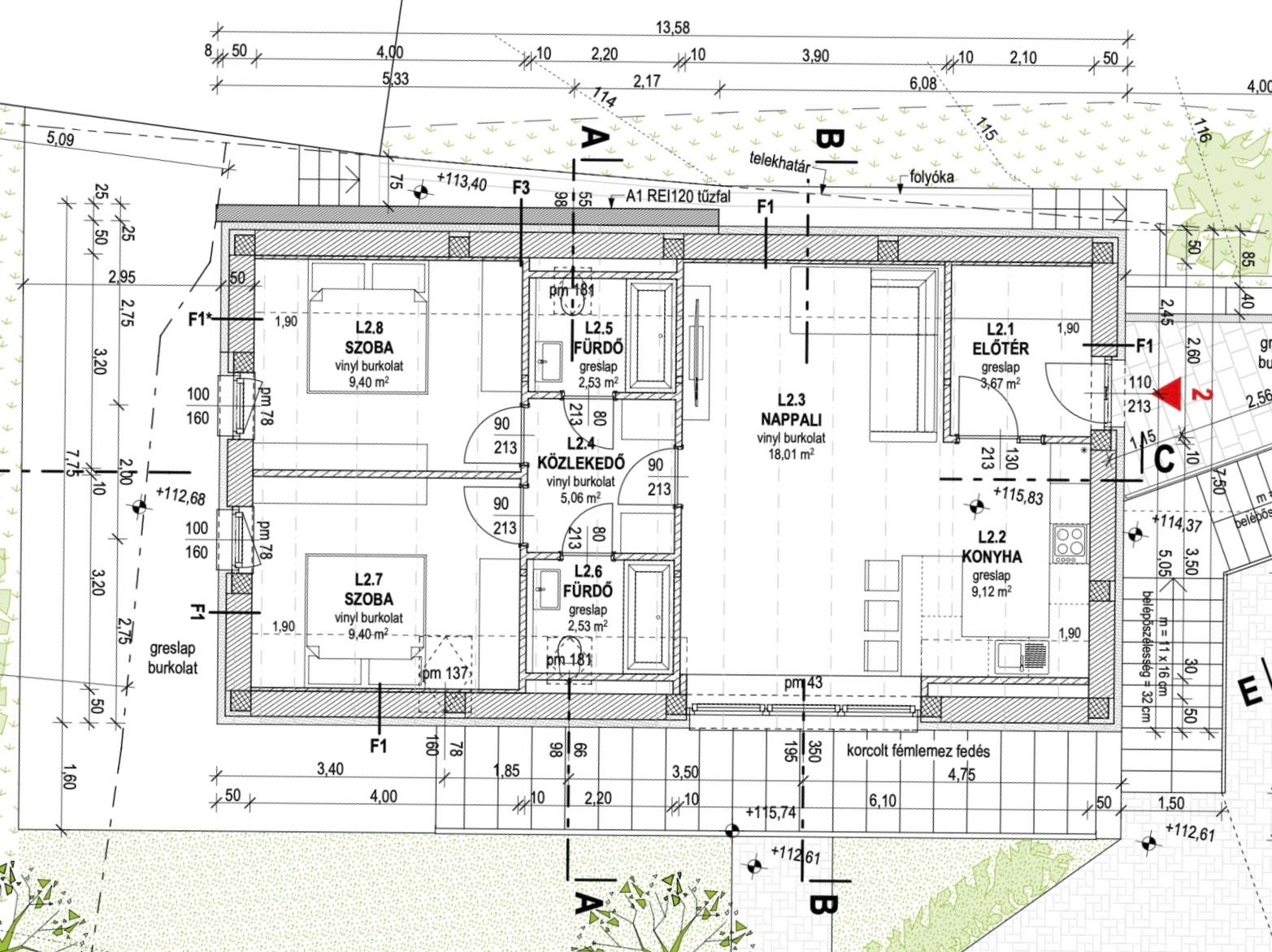
Pakson újépítésű dunai panorámás lakás eladó! 

Az ingatlanban található: konyha-nappali-étkező, 2 szoba, 2 fürdő, előszoba.

A lakás csendes utcában, luxus kivitelben kerül átadásra többszörösen díjnyertes kivitelező által.

Az építkezés jelenlegi szakaszában burkolatok, szaniterek, színek választhatóak.

A kulcsrakész lakás ár tartalmazza: konyhabútor, redőny, szúnyogháló.

Hőszivattyús mennyezethűtés és padlófűtés.

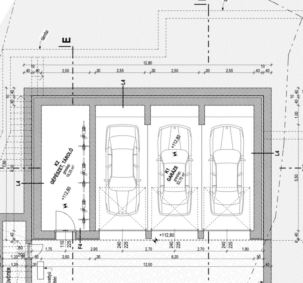
Vásárolható: garázs és további autóbeálló.

További kérdés esetén keressen bizalommal!

Képek